2 - 4 Zimmerwohnungen
55 - 165 m²
Landhausdielen aus Eiche
Großformatfliesen 60x120cm
Grohe Armaturen inkl. Rainshower
Aufzug in alle Wohnungen
Heizung mit Wärmepumpen
Tiefgaragen Einzelstellplatz mit Vorrichtung für E-Mobilität
Weitere Details in unserem Exposé
Anfragen unter Diese E-Mail-Adresse ist vor Spambots geschützt! Zur Anzeige muss JavaScript eingeschaltet sein!
089 / 230 216 - 110
Wohnung 1 (EG)   90.81m² Wohnfläche 1.019.500 €
| ERDGESCHOSS | Verkaufsfläche m² | Grundfläche m² |
|---|---|---|
| Wohnen/Essen/Kochen | ca. 29,21 m² | ca. 29,21 m² |
| Schlafen | ca. 16,28 m² | ca. 16,28 m² |
| Bad | ca. 9,88 m² | ca. 9,88 m² |
| Diele | ca. 10,11 m² | ca. 10,11 m² |
| Terrasse: | ca. 20,00 m² | ca. 20,00 m² |
| Garten(inkl. Terrasse) | 117 m² | |
| KELLERGESCHOSS | Verkaufsfläche m² | Grundfläche m² |
| Flur | ca. 3,01 m² | ca. 6,02 m² |
| Abstellraum | ca. 1,30 m² | ca. 2,59 m² |
| Hobby | ca. 8,05m² | ca. 16,09 m² |
| Duschbad | WC | ca. 2,97 m² | ca. 5,93 m² |
| Insgesamt | ca. 90,81 m² | ca. 116,11 m² |
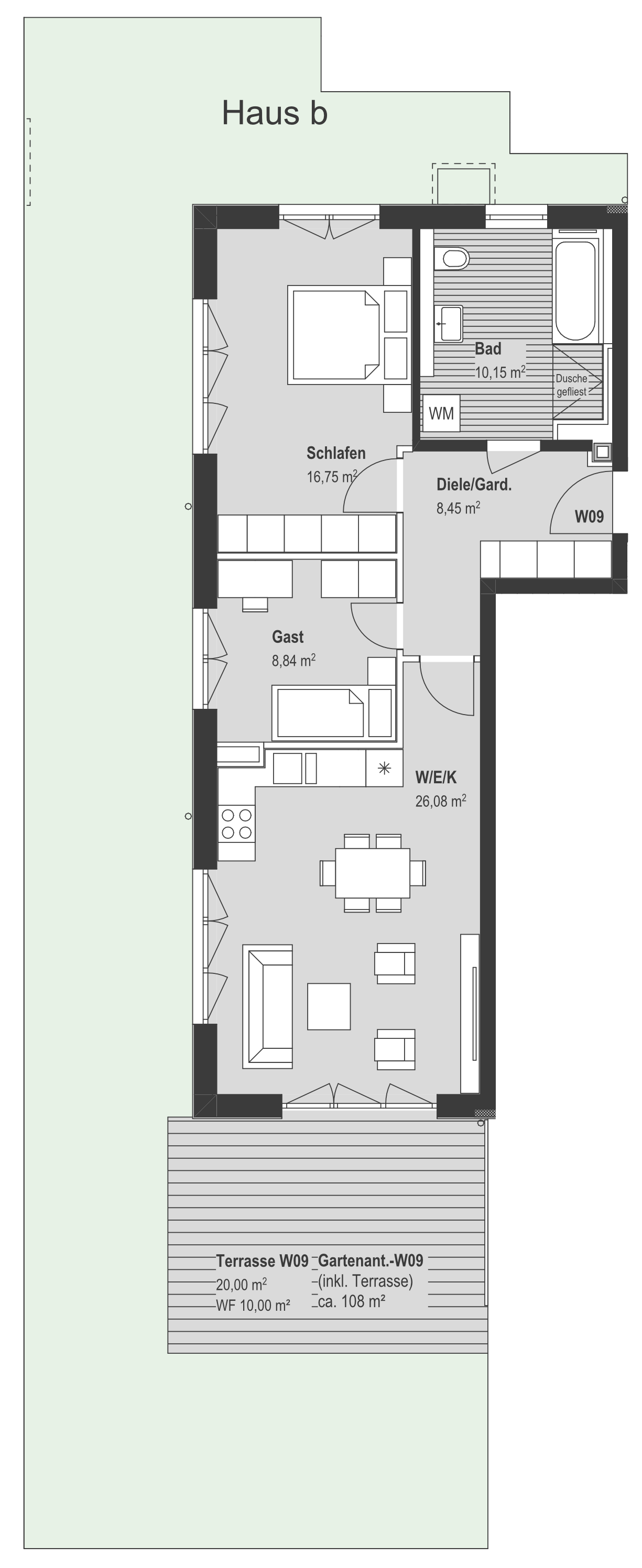
Wohnung 9 (EG)   80,27m² Wohnfläche 959.500 €
| ERDGESCHOSS | Verkaufsfläche m² | Grundfläche m² |
|---|---|---|
| Bad | ca. 10,15 m² | ca. 10,15 m² |
| Diele | ca. 8,45 m² | ca. 8,45 m² |
| Gast | ca. 8,84 m² | ca. 8,84 m² |
| Schlafen | ca. 16,75 m² | ca. 16,75 m² |
| Terrasse W09 | ca. 10,00 m² | ca. 20,00 m² |
| Wohnen/Essen/Küche | ca. 26,78 m² | ca. 26,78 m² |
| Garten(inkl. Terrasse) | 108 m² | |
| KELLERGESCHOSS | Verkaufsfläche m² | Grundfläche m² |
| Abstellraum | ca. 5,05 m² | ca. 5,05 m² |
| Insgesamt | ca. 80,27 m² | ca. 90,27 m² |
Die ruhige Lage am Sterrhubenweg bietet optimale Wohnbedingungen. Innerhalb von ca. 8 Gehminuten erreicht man die S-Bahn Station Obermenzing die einen innerhalb von 10 Minuten stressfrei in die Innenstadt fährt.
In unmittelbarer Nähe befindet sich der prachtvolle Nymphenburger Schlosspark, einer der wundervollsten Orte Münchens. Mit einer kleinen Radtour erreicht man das traumhafte Ufer der Würm und das märchenhafte Schloss Blutenberg, dass regelmäßig Ausstellungen und Konzerte anbietet, sowie das Blutenburger Weinfest oder einen schönen Christkindlmarkt.
Die schönen Biergärten und charmante Restaurants sowie optimale Einkaufsmöglichkeiten und Dienstleistungsangebote sowie diverse Schulen und Kindergärten bieten eine optimale Infrastruktur.
Obermenzing erfreut sich bei Jung und Alt durch die naturnahe, ruhige, aber doch zentrumsnahe Lage, der familienfreundlichen Infrastruktur und seinen unzähligen Grünflächen größter Beliebtheit.
Aufgrund der guten Verkehrsanbindung zählt es zu den begehrtesten Wohnlagen im Westen der Landeshauptstadt München.
Nur wenige Kilometer vom Münchner Stadtzentrum entfernt, bietet Obermenzing durch seine Symbiose aus Naturerlebnis, Innenstadtnähe und optimaler Verkehrsanbindung Lebensqualität aufhöchstem Niveau.
Eingewachsene Grundstücke, gepflegte Einfamilienhäuser und Villen prägen das angenehme, niveauvolle Wohnumfeld.
