Die Wohnungen sind ab sofort bezugsfertig!
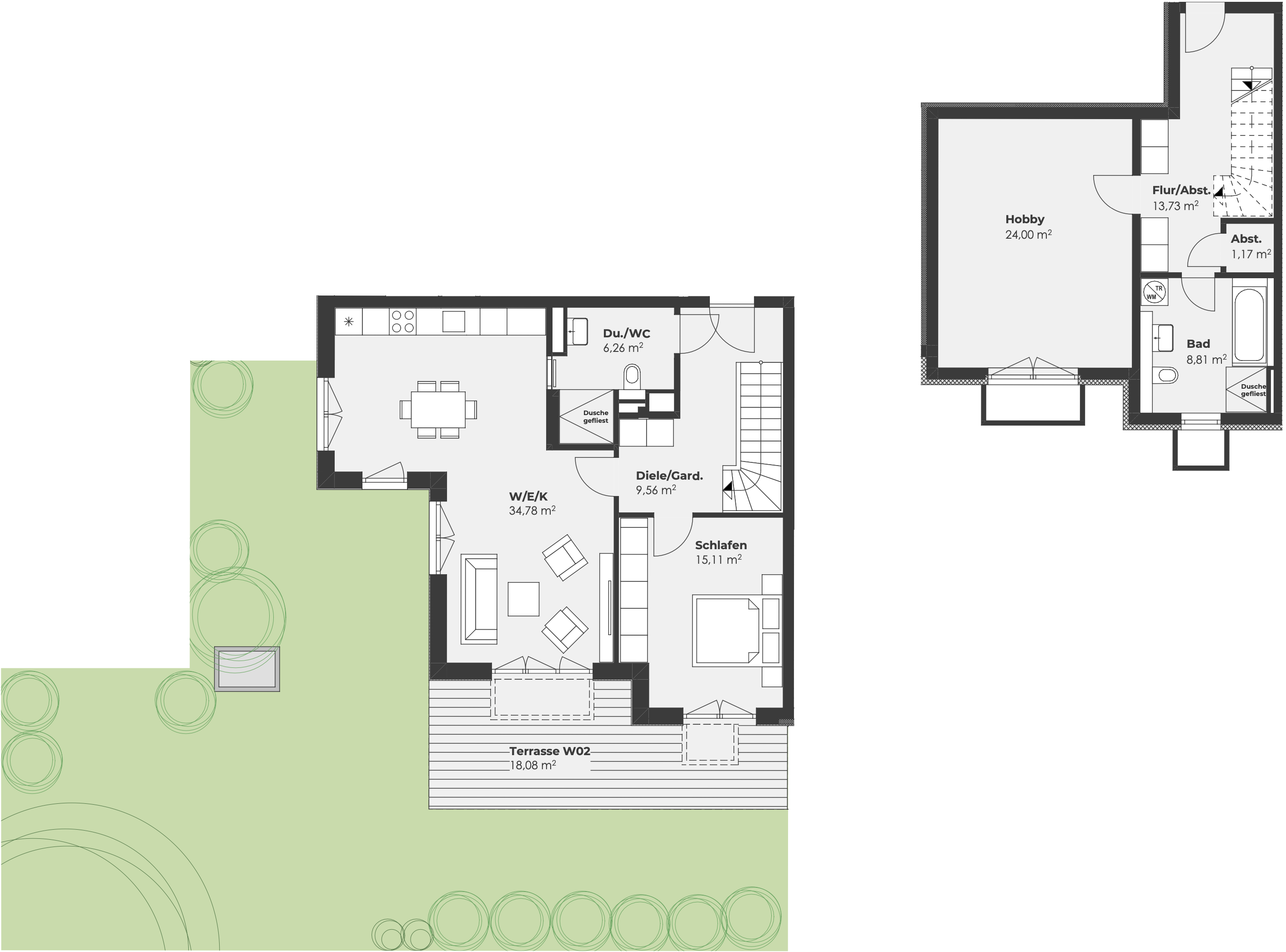
Wohnung 2 (EG)   99,62 m² Wohnfläche - 2 Zimmer 949.500€
Erdgeschosswohnung mit Terrasse und Gartenanteil + Hobbyraum mit Bad im Souterrain
| ERDGESCHOSS | Grundfläche m² | |
|---|---|---|
| Wohnen/Essen/Kochen | ca. 34,78 m² | |
| Schlafen | ca. 15,11 m² | |
| Bad | ca. 6,26 m² | |
| Diele | ca. 9,56 m² | |
| Terrasse: | ca. 18,08 m² | |
| Garten(inkl. Terrasse) | 126 m² | |
| KELLERGESCHOSS | Grundfläche m² | |
| Flur/Abstellraum | ca. 13,72 m² | |
| Abstellraum | ca. 1,17 m² | |
| Hobby | ca. 24 m² | |
| Dusche|WC | ca. 8,81 m² | |
| Insgesamt | ca. 133,52 m² |
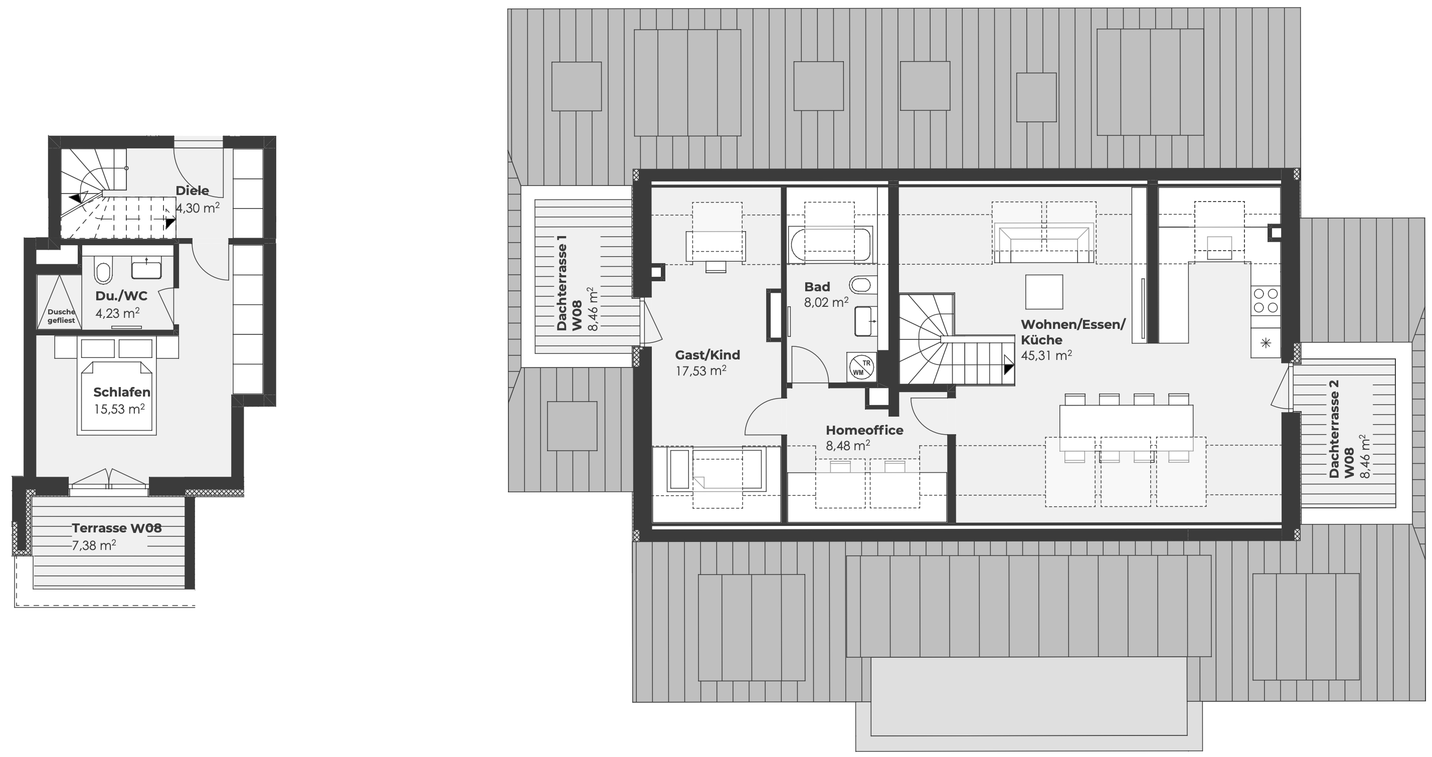
Wohnung 8 (DG)   93,24 m² Wohnfläche - 3 Zimmer 899.500€
Dachgeschosswohnung über zwei Ebenen mit drei Dachterassen
